DESIGN MODERNE | Terrain à Bâtir avec Projet Approuvé pour une Maison T3 chambres à Porto de Mós à Vendre – Lagos
- 1069 Référence
- 3 Chambres
- 4 Salles de bain
- 300 m²Construit
- 617 m²Parcelle



Ce terrain de 617 m² est situé dans l'un des quartiers résidentiels les plus prisés de Lagos et offre la possibilité de créer une résidence personnalisée dans un endroit qui allie tranquillité et proximité de la côte. À quelques minutes de la plage de Porto de Mós et à proximité des commerces locaux, des restaurants et de toutes les commodités de la vie quotidienne, la propriété offre un équilibre entre accessibilité et intimité.
Potentiel de conception et de construction
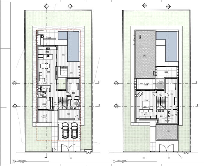
Le permis de construire pour la construction d'une surface habitable d'environ 300 m², ainsi que d'un garage fermé de 50 m², a déjà été accordé. Le projet approuvé, qui peut être réactivé par une prolongation du permis, prévoit une maison de deux étages dans un style clair et contemporain. Le projet comprend un salon et une salle à manger ouverts, une cuisine moderne et 3 chambres spacieuses avec salle de bain privée, ainsi qu'une salle de bain supplémentaire pour les invités.
Un bureau flexible ou une salle multifonctionnelle est prévu, qui peut également être utilisé comme quatrième chambre, en fonction des besoins futurs. Cette adaptabilité reflète la prise de conscience des changements dans les modes de vie, où le travail hybride et les conceptions d'espaces multifonctionnels sont de plus en plus appréciés.
Concept architectural et vie en plein air
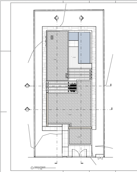
La villa prévue met l'accent sur l'interaction entre les espaces intérieurs et extérieurs, un principe central de l'architecture méditerranéenne. De généreuses terrasses prolongent les espaces de vie vers l'extérieur et offrent des zones ombragées et ensoleillées pour un confort tout au long de l'année et la convivialité. Une piscine privée et un garage pour deux voitures allient loisirs et fonctionnalité.
Emplacement et accessibilité
Le terrain est situé dans un emplacement extrêmement stratégique : à environ 5 minutes en voiture du centre historique de Lagos et de la marina de Lagos, tous deux connus pour leur vivacité culturelle et leur atmosphère en bord de mer. Plusieurs plages, dont Porto de Mós et Dona Ana, se trouvent à proximité et offrent une variété d'expériences en bord de mer. L'aéroport international de Faro (FAO) est à environ une heure de route et assure des liaisons pratiques vers des destinations nationales et internationales.
Perspective d'investissement
Bien qu'aucun bien immobilier ne puisse être considéré comme idéal de manière générale, ce terrain représente sans aucun doute une opportunité d'investissement attrayante pour ceux qui souhaitent allier l'individualité architecturale à l'attrait établi de la région de l'Algarve.
Intéressé?
Contactez notre équipe LiveAlgarve Realty pour obtenir plus d'informations sur cette offre et organiser une visite privée.
- 0 €/RENTALPOTENTIAL
- €/CONDO FEE
- 27,038 €/IMT TAX
Utilitaires de propriété
Caractéristiques de la Propriété
- Balcon
- Bureau
- Carport
- Garage
- Îlot de Cuisine
- Jardin Privé
- Patio
- Piscine
- Piscine Privée
- Près de la Plage
- Près de la Ville
- Près du Golfe
- Rangement
- Spots LED Intégrés
- Terrasse
- Zone Résidentielle
Plans d'étages



Carte
- D1070Réf
- 5 Des lits
- 6 WC
- 500 m²Construit
- 1829 m²Parcelle
- D1067Réf
- 2 Des lits
- 2 WC
- 158 m²Construit
- m²Parcelle
- D1061Réf
- 5 Des lits
- 6 WC
- 497 m²Construit
- 2710000 m²Parcelle
L'Algarve au fil des saisons - Comment chaque saison change votre expérience immobilière
|
Découvrez comment chaque saison transforme le potentiel immobilier et d'investissement en Algarve, des locations printanières au calme hivernal et à la valeur tout au long de l'année. |








































































































